蝸輪球閥產品概述
蝸輪球閥由一個依靠手動操作的蝸輪傳動機構和浮動球球閥組成,通過轉動手輪來控制閥門的開關,其閥桿設置在閥體內,閥桿底部與球體相連,閥體內設有閥座,球體設置在兩個閥座之間,閥座分別與閥體和閥蓋接觸,閥體和閥蓋通過螺栓和螺母進行連接,閥體和閥蓋之間設置有O型圈和石墨墊片,閥體上設有支架,蝸輪裝置套放在閥桿頂端。該閥球體是浮動的,在介質壓力作用下,球體能產生相應的位移,并緊壓在出口端的密封面上,保障密封。本產品具有流體阻力小,啟閉省力等優點。
蝸輪球閥通過采用非金屬密封閥座結構設計,從而使閥門在中、低壓及真空狀態下獲得可靠的密封。該閥為了保證球體在關閉位置時,能產生一個介質的作用力,事先在閥裝配時,球體必須緊貼閥座,而且需要過盈,產生一個預緊比壓。
蝸輪球閥部件材料
| 序號 | 部件名稱 | 材料名稱 | ||||
| 1 | 閥 體 | WCB | CF8 | CF3 | CF8M | CF3M |
| 2 | 閥 蓋 | WCB | CF8 | CF3 | CF8M | CF3M |
| 3 | 球 體 | 2Cr13 | 304 | 304L | 316 | 316L |
| 4 | 閥 座 | R-PTFE、PTFE、TEFLON、NYLON、PPL、PEEK、DEVLON、SS+HF | ||||
| 5 | 閥 桿 | 2Cr13 | 304 | 304L | 316 | 316L |
| 6 | 填料壓蓋 | WCB | CF8 | CF3 | CF8M | CF3M |
| 7 | 填 料 | GRAPHITE、R-PTFE、PTFE、TEFLON、PCTFE | ||||
| 8 | 螺 栓 | 35CrMoA | 06Cr19Ni10 | 06Cr19Ni10 | 06Cr17Ni12Mo2 | 06Cr17Ni12Mo2 |
| 9 | 螺 母 | 30CrMoA | 06Cr19Ni10 | 06Cr19Ni10 | 06Cr17Ni12Mo2 | 06Cr17Ni12Mo2 |
| 10 | 蝸 輪 | 組合件 | 組合件 | 組合件 | 組合件 | 組合件 |
蝸輪球閥技術規范
| 公稱壓力PN(MPa) | 1.6 | 2.5 | 4.0 | 2.0 | 5.0 |
| 殼體試驗壓力(MPa) | 2.4 | 3.75 | 6.0 | 3.0 | 7.5 |
| 高壓液體密封試驗壓力(MPa) | 1.76 | 2.75 | 4.4 | 2.2 | 5.5 |
| 低壓氣體密封試驗壓力(MPa) | 0.6 | 0.6 | 0.6 | 0.6 | 0.6 |
| 設計制造 | GB/T 12237、GB/T 21385、ASME B16.34、API 608、API 6D | ||||
| 結構長度 | GB/T 12221、ASME B16.10、API 6D | ||||
| 法蘭尺寸 | JB/T 79、GB/T 9113、HG/T 20592、HG/T 20615、SH/T 3406、ASME B16.5等 | ||||
| 檢驗試驗 | GB/T 26480、JB/T 9092、API 598、API 6D | ||||
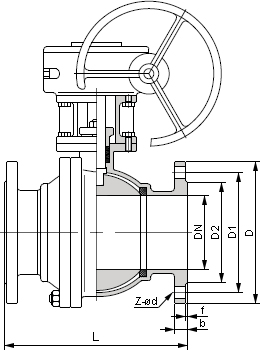
蝸輪球閥主要尺寸
| 公稱壓力 PN | 公稱通徑 DN | 外形及連接尺寸/mm | |||||
| L | D | D1 | D2 | b-f | Z-?d | ||
| 16 | 15 | 130 | 95 | 65 | 45 | 16-2 | 4-14 |
| 20 | 140 | 105 | 75 | 58 | 18-2 | 4-14 | |
| 25 | 150 | 115 | 85 | 68 | 18-2 | 4-14 | |
| 32 | 165 | 140 | 100 | 78 | 18-2 | 4-18 | |
| 40 | 180 | 150 | 110 | 88 | 18-2 | 4-18 | |
| 50 | 200 | 165 | 125 | 102 | 18-2 | 4-18 | |
| 65 | 220 | 185 | 145 | 122 | 18-2 | 8-18 | |
| 80 | 250 | 200 | 160 | 138 | 20-2 | 8-18 | |
| 100 | 280 | 220 | 180 | 158 | 20-2 | 8-18 | |
| 125 | 320 | 250 | 210 | 188 | 22-2 | 8-18 | |
| 150 | 360 | 285 | 240 | 212 | 22-2 | 8-22 | |
| 200 | 400 | 340 | 295 | 268 | 24-2 | 12-22 | |
| 250 | 450 | 405 | 355 | 320 | 26-2 | 12-26 | |
| 表中為HG/T 20592-2009標準PN16法蘭連接浮動球球閥尺寸,如需其他規格參數,請咨詢汗越閥門技術部! | |||||||
蝸輪球閥結構圖

如果你需訂購我廠法蘭球閥產品,咨詢時煩請提供公稱通徑、公稱壓力、閥體材質、內件材料、使用介質、工作溫度、法蘭標準法蘭密封面形式等,本產品根據不同工況需求閥座可采用聚四氟乙烯、增強聚四氟乙烯、尼龍、對位聚苯、聚醚醚酮等。
網站首頁