一體式放料球閥產品概述
一體式放料球閥是在一片式浮動球閥結構的基礎上,結合反應釜使用性能和工況條件設計而成的球式放料閥,其特點在于閥體入口設計成比出口大二到三個規格的變徑結構,其中出口端一般為閥門的公稱尺寸,而入口端則為與反應釜底放料孔相匹配的異徑法蘭,這樣就可以很方便的將它連接在釜底,作為反應釜的放料口,此外,該閥閥座與端面法蘭距離近,使球體緊貼在釜底,物料滯留少。本產品具有結構簡單、密封性能好,流體阻力低,啟閉力矩小等特點,不僅適用于精細化工、制藥、食品等行業的反應釜上,也可用在細軟顆粒介質輸送。
一體式放料球閥的關閉件為一帶孔球體繞通道的垂線進行90度旋轉,以達到開啟或關閉的目的,其閥桿可根據需要設計成由右45度向左45度轉動為關閉,由左45度向右45度轉動為開啟,這種啟閉終點角度更適合于樓上加料,樓下放料使用的反應釜安裝方式,手柄高度保持在同一水平面上,很方便。該閥還可以水平懸掛式安裝氣缸或液壓缸,位置基本接近釜底,不僅對反應釜下的操作空間占用少,也避免了因閥桿與活塞桿在一直線而因泄漏引起的干擾影響。本產品既承接了球閥的優點,又很好的解決了與反應釜的合理配套的連接方式問題。
一體式放料球閥部件材料
| 序號 | 部件名稱 | 材料名稱 | ||||
| 1 | 閥 體 | WCB | CF8 | CF3 | CF8M | CF3M |
| 2 | 閥座壓蓋 | WCB | CF8 | CF3 | CF8M | CF3M |
| 3 | 閥 座 | R-PTFE、PTFE、TEFLON、NYLON、PPL、PEEK、DEVLON、SS+HF | ||||
| 4 | 球 體 | 2Cr13 | 304 | 304L | 316 | 316L |
| 5 | 閥 桿 | 2Cr13 | 304 | 304L | 316 | 316L |
| 6 | 填 料 | GRAPHITE、R-PTFE、PTFE、TEFLON、PCTFE | ||||
| 7 | 填料壓蓋 | WCB | CF8 | CF3 | CF8M | CF3M |
| 8 | 螺 釘 | 35CrMo | 304 | 304 | 316 | 316 |
一體式放料球閥性能規范
| 公稱壓力PN(MPa) | 1.6 | 2.5 | 4.0 | 2.0 | 5.0 |
| 殼體試驗壓力(MPa) | 2.4 | 3.75 | 6.0 | 3.0 | 7.5 |
| 高壓液體密封試驗壓力(MPa) | 1.76 | 2.75 | 4.4 | 2.2 | 5.5 |
| 低壓氣體密封試驗壓力(MPa) | 0.6 | 0.6 | 0.6 | 0.6 | 0.6 |
| 設計制造 | GB/T 12237、GB/T 21385、ASME B16.34、API 608 | ||||
| 結構長度 | GB/T 12221、ASME B16.10或按訂貨合同要求 | ||||
| 連接法蘭 | JB/T 79、GB/T 9113、HG/T 20592、HG/T 20615、SH/T 3406、ASME B16.5等 | ||||
| 檢驗試驗 | GB/T 26480、JB/T 9092、API 598 | ||||
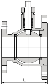
一體式放料球閥主要尺寸
| 公稱壓力 PN | 公稱通徑 DN | 連接端規格 | 結構長度 | 公稱壓力 PN | 公稱通徑 DN | 連接端規格 | 結構長度 |
| A×B(mm) | L(mm) | A×B(mm) | L(mm) | ||||
| 16 | 25 | 25×50 | 125 | 16 | 65 | 65×100 | 180 |
| 32 | 32×65 | 135 | 65 | 65×125 | 180 | ||
| 40 | 40×65 | 150 | 80 | 80×125 | 180 | ||
| 40 | 40×80 | 150 | 80 | 80×150 | 240 | ||
| 50 | 50×80 | 165 | 100 | 100×150 | 260 | ||
| 50 | 50×100 | 165 | 100 | 100×200 | 260 | ||
| 表中A表示閥體出口端法蘭公稱尺寸,B表示閥體入口端法蘭公稱尺寸,如需其他規格參數,請咨詢汗越閥門技術部! | |||||||
一體式放料球閥結構圖

如果你需訂購我廠放料閥系列產品,咨詢時煩請說明公稱通徑、公稱壓力、閥體和內件材料、使用溫度、驅動方式、法蘭執行標準及封面形式等。本產品有軟密封和金屬硬密封兩種可供選擇,以適應不同的應用場景。
網站首頁