快開籃式過濾器產品概述
快開籃式過濾器是一種將筒體上端口法蘭和頭蓋之間設計成通過活節螺栓與吊環螺母的擰緊或松開,實現快速連接或分離的盲板快開式籃式過濾器,當其需要清理濾網時,只要逆時針旋轉吊環螺母數個螺距,使得端蓋能隨活節螺栓轉動就行,此時可將上蓋打開,處理完后,又可很快關閉上。本產品是我廠針對需頻繁清洗或更換濾筒的工況而研制的,它摒棄了繁瑣的開啟和關閉方式,可在很短的時間內完成拆裝過程,減輕了工人的勞動強度,提高了工作效率。
快開籃式過濾器由螺栓孔一側銑有條形開口的筒體法蘭和筒蓋、活節螺栓、吊環螺母以及焊接在殼體上的耳板等部件組成快開門系統,其中活節螺栓帶孔的一端通過銷栓與耳板活動連接,另端則與吊環螺母相配合將筒體法蘭和筒蓋連接在一起,當需要打開端蓋時,無需使用其他工具,僅需一根能穿過吊環螺母孔并能承受一定扭力的棒子或鋼管即可,而且吊環螺母不用完全擰下來,只需擰到端頭,使得上蓋能與活節螺栓分離就行,就能提出濾籃進行清洗或更換。
快開籃式過濾器部件材料
| 序號 | 部件名稱 | 材料名稱 | |||||
| 1 | 筒 體 | Q235B | 20# | S30408 | S30403 | S31608 | S31603 |
| 2 | 接 管 | Q235B | 20# | S30408 | S30403 | S31608 | S31603 |
| 3 | 法 蘭 | Q235B | Q235B | S30408 | S30403 | S31608 | S31603 |
| 4 | 筒 蓋 | Q235B | Q235B | S30408 | S30403 | S31608 | S31603 |
| 6 | 濾 籃 | 304 | 304 | 304 | 304L | 316 | 316L |
| 7 | 活接螺栓 | 35 | 35 | 304 | 304 | 316 | 316 |
| 8 | 吊環螺母 | 45 | 45 | 304 | 304 | 316 | 316 |
| 9 | 排放絲堵 | 304 | 304 | 304 | 304L | 316 | 316L |
快開籃式過濾器性能規范
| 公稱壓力PN(MPa) | 0.25 | 0.6 | 1.0 | 1.6 | 2.0 | 2.5 |
| 殼體強度試驗壓力(MPa) | 0.375 | 0.9 | 1.5 | 2.4 | 3.0 | 3.75 |
| 氣密性試驗壓力(MPa) | 0.275 | 0.66 | 1.1 | 1.76 | 2.2 | 2.75 |
| 設計制造 | SH/T 3411-2017、JB/T 7538-2016、HG/T 21637-2021 | |||||
| 連接法蘭 | JB/T 81、GB/T 9119、HG/T 20592、HG/T 20615、SH/T 3406、ASME B16.5等 | |||||
| 檢驗驗收 | SH/T 3411-2017、JB/T 7538-2016、HG/T 21637-2021 | |||||
| 過濾精度 | 0.02mm~16.0mm | |||||
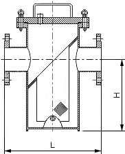
快開籃式過濾器主要尺寸
| 公稱壓力 PN | 公稱尺寸 DN | 結構尺寸/mm | 公稱壓力 PN | 公稱尺寸 DN | 結構尺寸/mm | ||
| L | H | L | H | ||||
| 20 (Class150) | 15 | 180 | 160 | 20 (Class150) | 150 | 500 | 420 |
| 20 | 180 | 160 | 200 | 560 | 530 | ||
| 25 | 185 | 160 | 250 | 660 | 640 | ||
| 32 | 200 | 160 | 300 | 750 | 840 | ||
| 40 | 260 | 170 | 350 | 810 | 920 | ||
| 50 | 260 | 170 | 400 | 900 | 950 | ||
| 65 | 330 | 240 | 450 | 1000 | 1000 | ||
| 80 | 340 | 250 | 500 | 1080 | 1050 | ||
| 100 | 400 | 300 | 600 | 1180 | 1200 | ||
| 125 | 480 | 360 | 700 | 1400 | 1360 | ||
| 150 | 500 | 420 | 800 | 1400 | 1500 | ||
| 表中未列出的其他規格尺寸,請咨詢汗越閥門技術部! | |||||||
快開籃式過濾器結構圖

本產品對于大口徑筒蓋重量重,開啟困難的問題,其安裝了轉臂機構,轉臂機構連接筒體與筒蓋,開啟蓋時,旋轉位于蓋上方的手輪,手輪帶動絲桿旋轉,從而提升蓋,隨后轉動轉臂將蓋轉動到筒體外。如果你需訂購我廠籃式過濾器系列產品,咨詢時煩請提供結構型式,公稱直徑、壓力等級、殼體材質、濾筒濾網材料、法蘭標準及密封面形式等。
網站首頁