燃氣管道在通常情況下是安全的,這是因為在管網所輸送的易燃氣體中不含有氧氣或其它氧化劑,火焰不可能在沒有氧化劑的純凈燃氣中產生和傳播。但是在某些特殊的意外條件下,例如因施工不當、地震、年久失修或其它不可預見的意外事故,就有可能造成管道網某處的破裂。如果管道是采用低壓輸送燃氣的,就有可能在管道破裂處造成局部壓力降,引起外界空氣進入管道網,使下游管網內的 燃氣成為與空氣的預混氣。當該預混氣達到爆炸極限時就具備了產生回火和導致爆炸災害的必要條件。國內外發生的類似事故已不鮮見。尤其隨著低濃度燃氣(甲烷濃度在25%以下)被逐步利用。如果能在管道網中適當的部位安裝燃氣管道阻火器,上述事故就可以得到有效的扼制。
燃氣管道阻火器的工作原理主要是基于火焰通過狹窄通道時的熄滅現象研究。大量的實驗研究結果表明,如果狹窄通道的直徑(指名義直徑)小到一 定程度,火焰在這種小通道中傳播一段距離后便會自動熄滅,也稱為淬熄。能使火焰發生淬熄的通道 直徑稱為淬熄直徑,用Dq來表示。火焰在具有淬熄直徑的通道上傳播到熄滅之前的那段距離稱為淬熄長度,用Lq來表示。

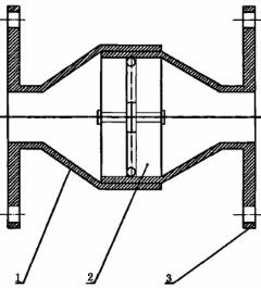
圖 1 燃氣管道阻火器結構
1一外殼;2一阻火芯;3一法蘭
燃氣管道阻火器就是根據小孔淬熄原理設計的。阻火器結構如圖1所示,它由外殼和阻火芯組成,可以通過法蘭3與管道或其它設備連接,也可以有其它各種連接方式。阻火器外殼1應具有較大的強度,能承受爆轟引起的動高壓。阻火芯2形式有多種,如多層金屬網疊合而成的金屬網式,波紋帶式等。后者是目前國際上比較通用的。波紋帶可采用鋁合金、不銹鋼或其它耐腐蝕材料制成,波紋帶與平板帶疊合卷制成圓盤狀,制成阻火芯盤,裝入阻火器外殼內,就將管道截面分割成許多小三角形截面,每一個三角形孔都是一個狹窄通道。當火焰通過時,就迫使管道中的火焰面通過這些狹窄通道,這些通道都滿足淬熄直徑的要求,于是火焰就在通過阻火芯時熄滅了。阻火芯的設計不僅應考慮到淬熄火焰的要求,還要盡量減少氣體的流阻,因此在設計之前應作精心的計算。三角形截面的高度(波紋高)、阻火芯波紋盤厚度及阻火器內部結構的變化對于其整體阻火性能都有直接的影響。K N Palmar對波紋板阻火器阻火性能作過實驗研究,并得到了具有應用價值的計算公式:
V=0.38αγ/d2
其中是臨界阻火速度(m/s);α是用分數表示的阻火器通氣自由面積與阻火芯總面積之比;γ是阻火芯厚度(cm);d是淬熄直徑。從該公式可以估算一個設計好的阻火器的臨界阻火速度。阻火器雖然并非一個燃燒器,但阻火器的設計顯然應考慮到其燃燒學和爆轟學特性,設計者應對火焰及沖擊波理論作詳盡的了解。
地 址:上海市金山區興塔工業區
咨詢電話:021-5736 2601
手機號碼:138 1635 7694
電子郵箱:hanyuev@163.com
網 址:http://www.tengteng88.com