全自動清洗過濾器在機體部位均配置了吊裝環,打開包裝木箱,取出隨機配件,利用鋼繩或專用吊鉤起吊,吊裝與就位時,請注意保持平穩,防止設備損壞。設備就位后即可進行現場安裝。
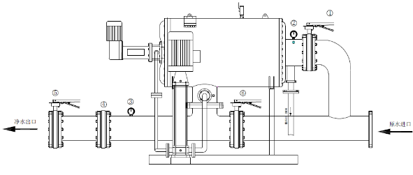
現場安裝如下圖所示:

①進水蝶閥 ②進水壓力表 ③出水壓力表 ④出水止回閥 ⑤出水蝶閥 ⑥旁通蝶閥
全自動清洗過濾器安裝時應注意以下事項:
1、全自動清洗過濾器必須裝在泵的出口,在過濾機的出水口必須要安裝止回閥,防止突然停水時產生瞬間負壓和背壓造成濾網損壞。
2、全自動清洗過濾器安裝的管網應保證壓力穩定,且在設備允許的壓力范圍內。
3、設備應保持水平安裝,排污口(DN50)不得上揚,安裝時拐彎要盡量少,確保排水暢通。
4、過濾機進出水口之間應設置旁通閥,以備系統故障或檢修時使用。
5、設備進出水管路上須設置壓力表,便于觀測系統運行壓力及壓力損失。
6、全自動清洗過濾器出水管路上應設置取樣放空閥,便于調試時濾后水取樣以及長期停機保存前的設備放空。
7、全自動清洗過濾器安裝時四周應預留出檢修空間。

地 址:上海市金山區興塔工業區
咨詢電話:021-5736 2601
手機號碼:138 1635 7694
電子郵箱:hanyuev@163.com
網 址:http://www.tengteng88.com