美標鍛鋼球閥產品概述
美標鍛鋼球閥是一種按API 6D或API 608標準設計制造的直通式浮動球或固定球球閥,其主體部件均為鍛造制品,材料質密,安全性能有保障,它的閥體有二片式和三段式兩種結構型式,閥體間的連接采用法蘭栓接,密封圈鑲入不銹鋼圈內,鋼座也加工出密封面,鋼座徑向與背面均設有O形圈,以確保介質不外漏,其中浮動球閥球體無支撐軸,球體被兩閥座夾持其中呈浮動狀態,而閥桿為下裝式設計,臺肩處設有推力軸承,減輕操作力矩。該閥設有開、關位置指示,它具有可靠的倒密封閥桿、防火防靜電功能、自動泄壓和鎖定裝置等。本產品主要適用于石油、石化、化工、天然氣及相關行業長輸管線等,可根據用戶的需要,設計成適于輸送含硫化氫、含固體顆粒、料漿等介質以及耐腐蝕、耐高溫、耐高壓結構。
美標鍛鋼球閥部件材料
| 序號 | 部件名稱 | 材料名稱 | |||||
| 1 | 閥 體 | A105 | A182 F304 | A182 F304L | A182 F316 | A182 F316L | A182 F347 |
| 2 | 連 接 體 | A105 | A182 F304 | A182 F304L | A182 F316 | A182 F316L | A182 F347 |
| 3 | 球 體 | A105+ENP | A182 F304 | A182 F304L | A182 F316 | A182 F316L | A182 F347 |
| 4 | 閥 座 | R-PTFE、PTFE、TEFLON、NYLON、PPL、PEEK、DEVLON、A105+ENP、SS+HF | |||||
| 5 | 上 閥 桿 | A182 F6a | A182 F304 | A182 F304L | A182 F316 | A182 F316L | A182 F347 |
| 6 | 下 閥 桿 | A182 F6a | A182 F304 | A182 F304L | A182 F316 | A182 F316L | A182 F347 |
| 7 | 填 料 | GRAPHITE、R-PTFE、PTFE、TEFLON、PCTFE | |||||
| 8 | 填料壓板 | A216 WCB | A351 CF8 | A351 CF3 | A351 CF8M | A351 CF3M | A351 CF8C |
| 9 | 螺 柱 | A193 B7 | A193 B8 | A193 B8 | A193 B8M | A193 B8M | A193 B8M |
| 10 | 螺 母 | A194 2H | A194 8 | A194 8 | A194 8M | A194 8M | A194 8M |
美標鍛鋼球閥性能規范
| 公稱壓力Class | 150 | 300 | 600 | 900 | 1500 | 2500 |
| 殼體試驗壓力(MPa) | 3.0 | 7.5 | 16.5 | 22.5 | 39.2 | 65.2 |
| 液體高壓密封試驗壓力(MPa) | 2.2 | 5.5 | 12.1 | 16.5 | 28.6 | 47.75 |
| 氣體低壓密封試驗壓力(MPa) | 0.6 | 0.6 | 0.6 | 0.6 | 0.6 | 0.6 |
| 設計制造 | API 6D-2014、API 608-2008、ASME B16.34-2013 | |||||
| 結構長度 | API 6D-2014、ASME B16.10-2017 | |||||
| 連接法蘭 | ASME B16.5-2017、ASME B16.47-2017、ANSI B16.5-2013等 | |||||
| 檢驗試驗 | API 6D-2014、API 598-2016 | |||||
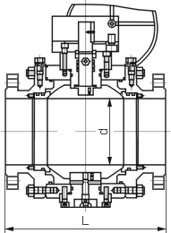
美標鍛鋼球閥主要尺寸
| 公稱壓力 Class | 公稱尺寸 NPS | 結構尺寸/mm | 公稱壓力 Class | 公稱尺寸 NPS | 結構尺寸/mm | ||
| d | L | d | L | ||||
| 150 | 2 | 49 | 178 | 300 | 2 | 49 | 216 |
| 2 ? | 62 | 191 | 2 ? | 62 | 241 | ||
| 3 | 74 | 203 | 3 | 74 | 283 | ||
| 4 | 100 | 229 | 4 | 100 | 305 | ||
| 6 | 150 | 394 | 6 | 150 | 403 | ||
| 8 | 201 | 457 | 8 | 201 | 502 | ||
| 10 | 252 | 533 | 10 | 252 | 568 | ||
| 12 | 303 | 610 | 12 | 303 | 648 | ||
| 14 | 334 | 686 | 14 | 334 | 762 | ||
| 16 | 385 | 762 | 16 | 385 | 838 | ||
| 18 | 436 | 864 | 18 | 436 | 914 | ||
| 20 | 487 | 914 | 20 | 487 | 991 | ||
| 24 | 589 | 1067 | 24 | 589 | 1143 | ||
| 26 | 633 | 1143 | 26 | 633 | 1245 | ||
| 28 | 684 | 1245 | 28 | 684 | 1346 | ||
| 30 | 735 | 1295 | 30 | 735 | 1397 | ||
| 32 | 779 | 1372 | 32 | 779 | 1524 | ||
| 34 | 830 | 1473 | 34 | 830 | 1626 | ||
| 36 | 874 | 1524 | 36 | 874 | 1727 | ||
| 表中未列出的其他規格參數,請咨詢汗越閥門技術部! | |||||||
美標鍛鋼球閥結構圖

如果你需訂購我廠鍛鋼球閥產品,咨詢時煩請注明產品型號,如無法提供型號數據,請說明公稱通徑、壓力等級、閥體材質、內件材料、介質溫度,本產品密封型式可根據使用介質和工作溫度的不同需求有軟密封和硬密封等可供選擇。
網站首頁