角式放料閥產品概述
角式放料閥由閥體、閥蓋、閥瓣、閥桿、閥座、支架、連接在閥桿上部的手動或驅動裝置組成,其閥體進料口與出料口通道的軸線成直角,適用于安裝在垂直相交的管線上的反應釜、儲槽和其他容器的底部放料、排料及取樣。該閥內腔有耐沖刷、耐腐蝕的密封面,在開啟閥的瞬間,可以保護閥腔不會被介質沖刷、腐蝕,并對密封面進行硬化處理,它的閥瓣斜面于閥座角形成線密封,當轉動手輪或接通氣動、電動時,閥桿帶動閥瓣上升或下移,閥門打開,流體通過閥瓣與閥座之間的間隙進入閥內,再由出口流出,反之則關閉。本產品閥體入口與罐底的連接形式可采用法蘭型或管接型,上展式的入口規格與閥門的公稱尺寸一樣大,而下展式的入口規格則比閥門的公稱尺寸大一到二級。
角式放料閥部件材料
序號 | 部件名稱 | 材料名稱 | ||||
1 | 閥 體 | WCB | CF8 | CF3 | CF8M | CF3M |
2 | 閥 蓋 | WCB | CF8 | CF3 | CF8M | CF3M |
3 | 閥 座 | WCB | CF8 | CF3 | CF8M | CF3M |
4 | 閥 桿 | WCB | CF8 | CF3 | CF8M | CF3M |
5 | 填 料 | GRAPHITE、RPTFE、PTFE、TEFLON、PPL | ||||
6 | 閥 瓣 | WCB | CF8 | CF3 | CF8M | CF3M |
7 | 墊 片 | GRAPHITE | PTFE | PTFE | PTFE | PTFE |
8 | 螺 柱 | 35CrMoA | 304 | 304 | 316 | 316 |
9 | 螺 母 | 30CrMo | 304 | 304 | 316 | 316 |
角式放料閥技術規范
公稱壓力PN(MPa) | 0.6 | 1.0 | 1.6 | 2.5 | 2.0 |
殼體強度試驗壓力(MPa) | 0.9 | 1.5 | 2.4 | 3.75 | 3.0 |
高壓水密封試驗壓力(MPa) | 0.66 | 1.1 | 1.76 | 2.75 | 2.2 |
低壓氣密封試驗壓力(MPa) | 0.6 | 0.6 | 0.6 | 0.6 | 0.6 |
設計標準 | JB/T 11489-2013 放料用截止閥 | ||||
連接法蘭 | JB/T 79、GB/T 9113、HG/T 20592、HG/T 20615、SH/T 3406、ASME B16.5 | ||||
檢驗試驗 | JB/T 11489-2013 放料用截止閥 | ||||
適用溫度 | -60℃ ~ 232℃ | ||||
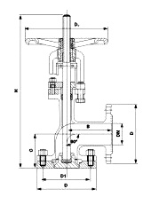
角式放料閥外型尺寸
公稱壓力 PN(MPa) | 公稱通徑 DN(mm) | 尺寸(mm) | |||||
B | C | H | D0 | D | D1 | ||
1.6 | 50 | 124 | 77 | 370 | 180 | 160 | 125 |
80 | 158 | 103 | 480 | 250 | 195 | 160 | |
100 | 168 | 123 | 590 | 280 | 215 | 180 | |
150 | 209 | 156 | 775 | 320 | 280 | 240 | |
角式放料閥結構圖

如果你需訂購我廠放料閥產品,咨詢時煩請說明公稱通徑、公稱壓力、閥體材質、操作方式等,本產品操作方式可選用手動、齒輪、氣動(彈簧復位式,雙作用式、帶手輪和不帶手輪)、電動、液動等。
網站首頁